Help us help you. By posting the year, make, model and engine near the beginning of your help request, followed by the symptoms (no start, high idle, misfire etc.) Along with any prevalent Diagnostic Trouble Codes, aka DTCs, other forum members will be able to help you get to a solution more quickly and easily!

2009 Dodge Journey, Starter issues

  • prometheus1
  • prometheus1's Avatar Topic Author
  • Offline
  • New Member
  • New Member
More
6 years 11 months ago #29777 by prometheus1
2009 Dodge Journey, Starter issues was created by prometheus1
Hello,
Just purchased this vehicle, dove it home and started it a few times. Put vehicle in the garage and a couple hours later I go out an it doesn't start. The starter is clicking and thats it. I've checked all of the fuses and the relays all are good. New battery and a new starter, and still just get the clicking. Scanned for codes and found P0615. Did the Diagnostic Trouble code test procedures and found all was good but one. Test- Starter control circuit shorted to ground. the test ask if the resistance is below 100 ohm's. the meter showed 0.00 on all scales.

Any ideas on how to proceed with this one?
I get all my info from Alldata

Please Log in or Create an account to join the conversation.

  • Chad
  • Chad's Avatar
  • Offline
  • Moderator
  • Moderator
  • I am not a parts changer.
More
6 years 11 months ago #29780 by Chad
Replied by Chad on topic 2009 Dodge Journey, Starter issues
While attempting to crank, and the starter is clicking, what voltage to you read on FUSE J17? If you see, near, battery voltage, what voltage to you read on the YEL/VIO wire, at the starter?



"Knowledge is a weapon. Arm yourself, well, before going to do battle."
"Understanding a question is half an answer."

I have learned more by being wrong, than I have by being right. :-)
Attachments:

Please Log in or Create an account to join the conversation.

More
6 years 11 months ago - 6 years 11 months ago #29787 by Andy.MacFadyen
Replied by Andy.MacFadyen on topic 2009 Dodge Journey, Starter issues
Although Chrysler electrics are what they are before doing anything else give the starter a couple of good whacks with lump of wood or socket extension and then try the starter.

" We're trying to plug a hole in the universe, what are you doing ?. "
(Walter Bishop Fringe TV show)



Last edit: 6 years 11 months ago by Andy.MacFadyen.

Please Log in or Create an account to join the conversation.

  • prometheus1
  • prometheus1's Avatar Topic Author
  • Offline
  • New Member
  • New Member
More
6 years 11 months ago #29792 by prometheus1
Replied by prometheus1 on topic 2009 Dodge Journey, Starter issues
I've tried that with the old starter. And there was no response.

Please Log in or Create an account to join the conversation.

More
6 years 11 months ago #29793 by jreardon
Replied by jreardon on topic 2009 Dodge Journey, Starter issues
Have a buddy hold ignition in crank position make sure thick red cable has battery voltage to the stud on the starter and also make sure the ground on starter stays close to zero.

IF that checks good, connect multimeter to posts on solenoid and check for drop there: i.imgur.com/LDPGNai.jpg
High volts means bad solenoid contacts.

Please Log in or Create an account to join the conversation.

  • prometheus1
  • prometheus1's Avatar Topic Author
  • Offline
  • New Member
  • New Member
More
6 years 11 months ago #29794 by prometheus1
Replied by prometheus1 on topic 2009 Dodge Journey, Starter issues
Hi Chad. I tested the fuse J17 and the voltage is, when cranking, 10.85 v. The voltage at the yellow/violet wire when cranking is .29 v.

Please Log in or Create an account to join the conversation.

More
6 years 11 months ago #29795 by leonardo.monde
Replied by leonardo.monde on topic 2009 Dodge Journey, Starter issues

prometheus1 wrote: Hello,
Just purchased this vehicle, dove it home and started it a few times. Put vehicle in the garage and a couple hours later I go out an it doesn't start. The starter is clicking and thats it. I've checked all of the fuses and the relays all are good. New battery and a new starter, and still just get the clicking. Scanned for codes and found P0615. Did the Diagnostic Trouble code test procedures and found all was good but one. Test- Starter control circuit shorted to ground. the test ask if the resistance is below 100 ohm's. the meter showed 0.00 on all scales.

Any ideas on how to proceed with this one?
I get all my info from Alldata


You have a short to ground.

Please Log in or Create an account to join the conversation.

  • Chad
  • Chad's Avatar
  • Offline
  • Moderator
  • Moderator
  • I am not a parts changer.
More
6 years 11 months ago - 6 years 11 months ago #29796 by Chad
Replied by Chad on topic 2009 Dodge Journey, Starter issues
You have a bad spot in the yellow/violet. Probably green crusty corrosion. You may, or may, not be able to SEE it. A pin-hole in the wire coating can allow moisture, creating corrosion. You need to find the bad spot, or run a new wire. Somewhere, on the way to the starter, there is a dividing point between 10.85 v and .29v. This will be your corrosion point.

You can Pierce Probe the wire in a methodical manner, probing in the middle of the two reference points, and determining which direction you need to go. If you read 10.85 v, move closer to the starter and probe, again. If you read .29 v, move closer to the fuse and probe again.

You MUST take you voltage measurements while the circuit is loaded (starter clicking). If you test an UNLOADED circuit, the results will be inaccurate.

Watch this video:



EDIT:Be sure to seal any holes you pierce with liquid tape, or fingernail polish. Anything to prevent additional green crusties.

"Knowledge is a weapon. Arm yourself, well, before going to do battle."
"Understanding a question is half an answer."

I have learned more by being wrong, than I have by being right. :-)
Last edit: 6 years 11 months ago by Chad.

Please Log in or Create an account to join the conversation.

  • Chad
  • Chad's Avatar
  • Offline
  • Moderator
  • Moderator
  • I am not a parts changer.
More
6 years 11 months ago #29798 by Chad
Replied by Chad on topic 2009 Dodge Journey, Starter issues

leonardo.monde wrote: You have a short to ground.


A short to ground would, likely, blow fuse J17

"Knowledge is a weapon. Arm yourself, well, before going to do battle."
"Understanding a question is half an answer."

I have learned more by being wrong, than I have by being right. :-)
The following user(s) said Thank You: Tyler

Please Log in or Create an account to join the conversation.

  • Chad
  • Chad's Avatar
  • Offline
  • Moderator
  • Moderator
  • I am not a parts changer.
More
6 years 11 months ago - 6 years 11 months ago #29800 by Chad
Replied by Chad on topic 2009 Dodge Journey, Starter issues
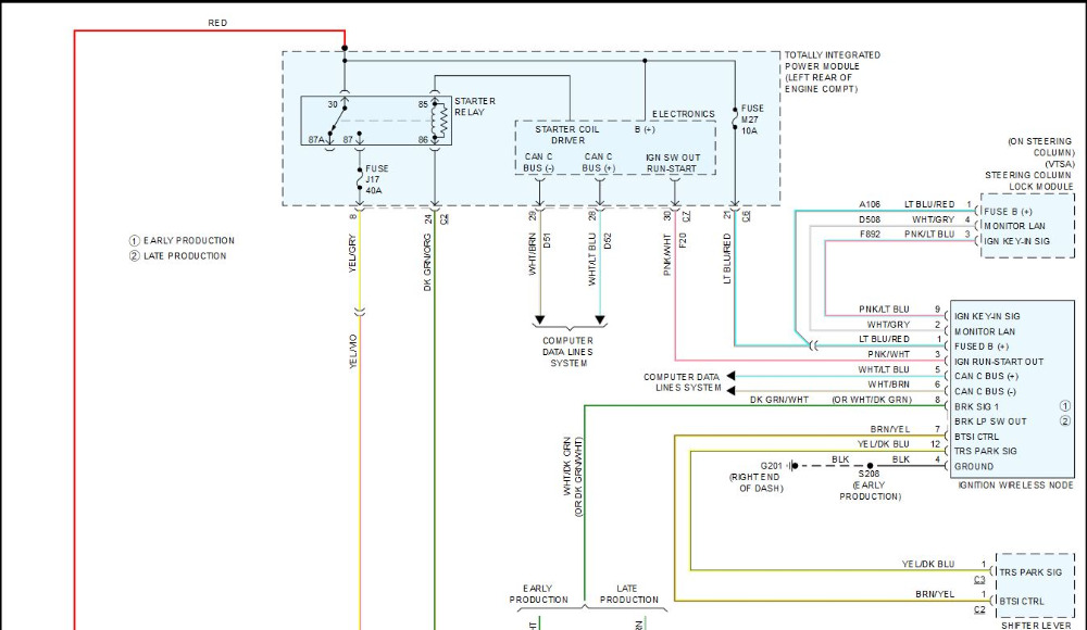
This splice might be a good place to start, if you can find it.

"Knowledge is a weapon. Arm yourself, well, before going to do battle."
"Understanding a question is half an answer."

I have learned more by being wrong, than I have by being right. :-)
Attachments:
Last edit: 6 years 11 months ago by Chad.

Please Log in or Create an account to join the conversation.

  • prometheus1
  • prometheus1's Avatar Topic Author
  • Offline
  • New Member
  • New Member
More
6 years 11 months ago #29809 by prometheus1
Replied by prometheus1 on topic 2009 Dodge Journey, Starter issues
Thanks Chad, I'll go and see what I can find.

Please Log in or Create an account to join the conversation.

More
6 years 3 months ago #36904 by tkast
Replied by tkast on topic 2009 Dodge Journey, Starter issues
I've got a 2009 Dodge Journey SXT 3.5L which is now sitting in the driveway dead - actually there is clicking when you turn the key. The starter was recently replaced and the vehicle did start immediately when it was on the ramp but after it was driven off the ramp and parked, failed to start. There was a noticeable noise when it was driven off the ramp. Can you tell me with regard to fuse J17 and the Yel/Gry and Yel/Vio wires that go to the starter, what other systems would be affected if there is a short in the Yel/Gry or Yel/Vio wires? I'm not an electrical or car person but my husband has been dealing with our Journey. The recalls are up to date but before the totally dead situation now, the airbag indicator light would always come on after starting the car and would be always on when driving. (Door harness issue?).

Please Log in or Create an account to join the conversation.

More
6 years 3 months ago - 6 years 3 months ago #36918 by Spiterijake
Replied by Spiterijake on topic 2009 Dodge Journey, Starter issues
.
Last edit: 6 years 3 months ago by Spiterijake.

Please Log in or Create an account to join the conversation.

Time to create page: 0.351 seconds