Help us help you. By posting the year, make, model and engine near the beginning of your help request, followed by the symptoms (no start, high idle, misfire etc.) Along with any prevalent Diagnostic Trouble Codes, aka DTCs, other forum members will be able to help you get to a solution more quickly and easily!
1984 Cadillac Fleetwood V8 6.0L VIN: IG6AF3396E9090369
- Broomfield
-
Topic Author
- Offline
- New Member
-
Less
More
- Posts: 1
- Thank you received: 0
7 years 10 months ago #18409
by Broomfield
1984 Cadillac Fleetwood V8 6.0L VIN: IG6AF3396E9090369 was created by Broomfield
Hello everyone,
I was given task to bring this Iconic vehicle back to its former glory which I consider to be privilage. Its being around the block and had its fear share of parts thrown at it, trying to fix a no start. ECM and Fuel pump was replaced and wire lumes taken apart that I was told by the garage owner. My initial approach was, carry out research to see what systems I'm dealing with. Realising that this was a bypass ignition system, I check for spark which was good, the RPM reference from ignition module was present 0 to 5 volt square wave, but no injector controls, no fuel supply.
I then go on to check for the 5 volt reference at the throttle position sensor which was missing and also no check engine light which suggest that the ECM is not responding. Thanks to you know who? (SD)
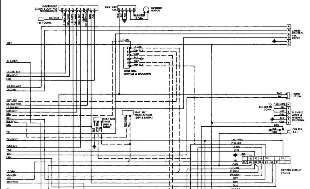
At this stage I try to find wiring diagrams to verify powers and grounds and to identify all the sensors that share the 5 volt reference, but the search was unsuccessful. The closest found was for a 1986 model from BBB Industries. I go on to check all fuses which was good.
I've also get the identification numbers of the Proms/Calpack verify by a GM Authorised Parts Service and Repair in the UK to make sure that the swapped was done correctly. Even they were unable to help with wiring diagram.
I'm asking if anyone has resource for these model vehicle and can assist me with wiring diagrams engine management and power distribution I would be most greatful. And also any tips or pit falls to look for on these models.
Kind Regards
Michael
I was given task to bring this Iconic vehicle back to its former glory which I consider to be privilage. Its being around the block and had its fear share of parts thrown at it, trying to fix a no start. ECM and Fuel pump was replaced and wire lumes taken apart that I was told by the garage owner. My initial approach was, carry out research to see what systems I'm dealing with. Realising that this was a bypass ignition system, I check for spark which was good, the RPM reference from ignition module was present 0 to 5 volt square wave, but no injector controls, no fuel supply.
I then go on to check for the 5 volt reference at the throttle position sensor which was missing and also no check engine light which suggest that the ECM is not responding. Thanks to you know who? (SD)
At this stage I try to find wiring diagrams to verify powers and grounds and to identify all the sensors that share the 5 volt reference, but the search was unsuccessful. The closest found was for a 1986 model from BBB Industries. I go on to check all fuses which was good.
I've also get the identification numbers of the Proms/Calpack verify by a GM Authorised Parts Service and Repair in the UK to make sure that the swapped was done correctly. Even they were unable to help with wiring diagram.
I'm asking if anyone has resource for these model vehicle and can assist me with wiring diagrams engine management and power distribution I would be most greatful. And also any tips or pit falls to look for on these models.
Kind Regards
Michael
Please Log in or Create an account to join the conversation.
- Chad
-
- Offline
- Moderator
-
- I am not a parts changer.
Less
More
- Posts: 2129
- Thank you received: 715
7 years 10 months ago #18411
by Chad
"Knowledge is a weapon. Arm yourself, well, before going to do battle."
"Understanding a question is half an answer."
I have learned more by being wrong, than I have by being right.
Replied by Chad on topic 1984 Cadillac Fleetwood V8 6.0L VIN: IG6AF3396E9090369
"Knowledge is a weapon. Arm yourself, well, before going to do battle."
"Understanding a question is half an answer."
I have learned more by being wrong, than I have by being right.
Please Log in or Create an account to join the conversation.
- Chad
-
- Offline
- Moderator
-
- I am not a parts changer.
Less
More
- Posts: 2129
- Thank you received: 715
7 years 10 months ago #18414
by Chad
"Knowledge is a weapon. Arm yourself, well, before going to do battle."
"Understanding a question is half an answer."
I have learned more by being wrong, than I have by being right.
Replied by Chad on topic 1984 Cadillac Fleetwood V8 6.0L VIN: IG6AF3396E9090369
"Knowledge is a weapon. Arm yourself, well, before going to do battle."
"Understanding a question is half an answer."
I have learned more by being wrong, than I have by being right.
Please Log in or Create an account to join the conversation.
- Chad
-
- Offline
- Moderator
-
- I am not a parts changer.
Less
More
- Posts: 2129
- Thank you received: 715
7 years 10 months ago #18415
by Chad
"Knowledge is a weapon. Arm yourself, well, before going to do battle."
"Understanding a question is half an answer."
I have learned more by being wrong, than I have by being right.
Replied by Chad on topic 1984 Cadillac Fleetwood V8 6.0L VIN: IG6AF3396E9090369
"Knowledge is a weapon. Arm yourself, well, before going to do battle."
"Understanding a question is half an answer."
I have learned more by being wrong, than I have by being right.
Please Log in or Create an account to join the conversation.
- Chad
-
- Offline
- Moderator
-
- I am not a parts changer.
Less
More
- Posts: 2129
- Thank you received: 715
7 years 10 months ago #18417
by Chad
"Knowledge is a weapon. Arm yourself, well, before going to do battle."
"Understanding a question is half an answer."
I have learned more by being wrong, than I have by being right.
Replied by Chad on topic 1984 Cadillac Fleetwood V8 6.0L VIN: IG6AF3396E9090369
"Knowledge is a weapon. Arm yourself, well, before going to do battle."
"Understanding a question is half an answer."
I have learned more by being wrong, than I have by being right.
Please Log in or Create an account to join the conversation.
Time to create page: 0.267 seconds