Help us help you. By posting the year, make, model and engine near the beginning of your help request, followed by the symptoms (no start, high idle, misfire etc.) Along with any prevalent Diagnostic Trouble Codes, aka DTCs, other forum members will be able to help you get to a solution more quickly and easily!

'05 Acura TSX DTC 54-50

  • Tutti57
  • Tutti57's Avatar Topic Author
  • Offline
  • Platinum Member
  • Platinum Member
More
8 years 5 months ago #11552 by Tutti57
'05 Acura TSX DTC 54-50 was created by Tutti57
This one says "Internal failure of the SRS unit."

I feel like I remember that one means I need to replace the module. Is there a way to test these things?

I've used rebuilder services before for modules with good luck but the ones I'm finding appear to o ly be clearing hard codes after accidents. Could that be what this one is from?

Thanks

Please Log in or Create an account to join the conversation.

  • Tyler
  • Tyler's Avatar
  • Offline
  • Moderator
  • Moderator
  • Full time HACK since 2012
More
8 years 5 months ago #11566 by Tyler
Replied by Tyler on topic '05 Acura TSX DTC 54-50
Yeah that sure sounds like a death code to me. :( Is this a hard failure? Or, does it come back intermittently?

If it comes back immediately, then I'd suggest testing module powers and grounds. I attached the ABS wiring diagram for reference. B+ on pins 1, 16 and 38. Ground on pins 32 and 47.

File Attachment:

File Name: acuraABS.pdf
File Size:1,210 KB


I've never had a customer buy a module for this code, or a rebuild for that matter, so I can't say if sending to a rebuilder is a good option or not. :lol: Most just opt to live with the light once they hear the price.
Attachments:

Please Log in or Create an account to join the conversation.

  • Tutti57
  • Tutti57's Avatar Topic Author
  • Offline
  • Platinum Member
  • Platinum Member
More
8 years 5 months ago #11568 by Tutti57
Replied by Tutti57 on topic '05 Acura TSX DTC 54-50
Thanks for the info. I found some used ones on eBay for $80 and repair places are $40. My Launch scanpad should be able to program one.

The light comes on immediately after I clear the code. I'm not even sure if it is being cleared.

How exactly do I test those pins?

Thank you. You are always super helpful!

Please Log in or Create an account to join the conversation.

  • Tutti57
  • Tutti57's Avatar Topic Author
  • Offline
  • Platinum Member
  • Platinum Member
More
8 years 5 months ago - 8 years 5 months ago #11569 by Tutti57
Replied by Tutti57 on topic '05 Acura TSX DTC 54-50
Am I just doing a continuity test there?

I just noticed that you attached the ABS diagram and I am having trouble with the airbag light.

I emailed a company to see if this is something they could repair as well.
Last edit: 8 years 5 months ago by Tutti57.

Please Log in or Create an account to join the conversation.

  • Tyler
  • Tyler's Avatar
  • Offline
  • Moderator
  • Moderator
  • Full time HACK since 2012
More
8 years 5 months ago #11571 by Tyler
Replied by Tyler on topic '05 Acura TSX DTC 54-50

Tutti57 wrote: How exactly do I test those pins?

Thank you. You are always super helpful!


I try! :lol: I'd go with a backprobe and an incandescent test light, KOEO. A DMM with work, too. Check the powers with the test light connected to B-, and the grounds with the light connected to B+. If they all shine bright, then it's module time.

I just noticed that you attached the ABS diagram and I am having trouble with the airbag light.


Is it throwing a specific code? I get these from the BBB Industries site , FYI.

File Attachment:

File Name: acuraairbag.pdf
File Size:1,366 KB
Attachments:

Please Log in or Create an account to join the conversation.

  • Tutti57
  • Tutti57's Avatar Topic Author
  • Offline
  • Platinum Member
  • Platinum Member
More
8 years 4 months ago #12387 by Tutti57
Replied by Tutti57 on topic '05 Acura TSX DTC 54-50
So I just put in a used module and figured the srs light was still on because I haven't programmed it yet. I found 4 stored dtcs that I cannot delete. I'm guessing the car I got it from was in a crash and these are the codes from that car?

Now I think I'll have to send the module out to be cleared and then reinstall.

Doesn't all of that sound right?

61-10 open in the driver's seat belt buckle switch

31-10 open in the driver's side airbag inflater.

F1-11 Drivers airbag and/or drivers seat belt tensioner and seat belt buckle tensioner deployed.

F2-22 Front passengers airbag and/or front passengers seat belt tensioner and seat belt buckle tensioner deployed.

Please Log in or Create an account to join the conversation.

  • Tutti57
  • Tutti57's Avatar Topic Author
  • Offline
  • Platinum Member
  • Platinum Member
More
8 years 3 months ago #13011 by Tutti57
Replied by Tutti57 on topic Re:'05 Acura TSX DTC 54-50
With the faults listed above stored in the module and srs light illuminated, does the srs system get deactivated? Like when the abs light is on and abs shuts down?

Sent from my Moto G Play using Tapatalk

Please Log in or Create an account to join the conversation.

  • Tutti57
  • Tutti57's Avatar Topic Author
  • Offline
  • Platinum Member
  • Platinum Member
More
8 years 3 months ago #13032 by Tutti57
Replied by Tutti57 on topic Re:'05 Acura TSX DTC 54-50
Bump!

Sent from my Moto G Play using Tapatalk

Please Log in or Create an account to join the conversation.

  • Noah
  • Noah's Avatar
  • Offline
  • Moderator
  • Moderator
  • Give code definitions with numbers!
More
8 years 3 months ago #13316 by Noah
Replied by Noah on topic Re:'05 Acura TSX DTC 54-50

Tutti57 wrote: With the faults listed above stored in the module and srs light illuminated, does the srs system get deactivated? Like when the abs light is on and abs shuts down?

Sent from my Moto G Play using Tapatalk


I've always assumed that's how it works, but the SRS system has a lot of components. It may not bring down the entire system if there's a problem with a single component.

The description and operation of the system on All Data doesn't specify one way or the other.

"Ground cannot be checked with a 10mm socket"

Please Log in or Create an account to join the conversation.

  • Tutti57
  • Tutti57's Avatar Topic Author
  • Offline
  • Platinum Member
  • Platinum Member
More
8 years 3 months ago #13317 by Tutti57
Replied by Tutti57 on topic Re:RE: Re:'05 Acura TSX DTC 54-50

Noah wrote:

Tutti57 wrote: With the faults listed above stored in the module and srs light illuminated, does the srs system get deactivated? Like when the abs light is on and abs shuts down?

Sent from my Moto G Play using Tapatalk


I've always assumed that's how it works, but the SRS system has a lot of components. It may not bring down the entire system if there's a problem with a single component.

The description and operation of the system on All Data doesn't specify one way or the other.

Gotcha. I sent the used one out to have the codes wiped and should get it this week. I'll let you know if this was a cheap fix route.

Sent from my Moto G Play using Tapatalk

Please Log in or Create an account to join the conversation.

  • Tutti57
  • Tutti57's Avatar Topic Author
  • Offline
  • Platinum Member
  • Platinum Member
More
8 years 3 months ago #13431 by Tutti57
Replied by Tutti57 on topic Re:'05 Acura TSX DTC 54-50
Man, I didn't think of this. The three codes I just posted about are now gone, but there are three new ones. 44-20, 45-20, 46-20 all stating - internal fairlure of the right side impact sensor (first), Internal failure of the right side impact sensor (second), internal fairlure of the left side impact sensor (second).

My best guess is that the bad module didn't detect the sensor issues and now the good one does. Does that make sense?



Sent from my Moto G Play using Tapatalk

Please Log in or Create an account to join the conversation.

  • Tyler
  • Tyler's Avatar
  • Offline
  • Moderator
  • Moderator
  • Full time HACK since 2012
More
8 years 3 months ago #13438 by Tyler
Replied by Tyler on topic Re:'05 Acura TSX DTC 54-50
Never ends with this one, eh? :lol: No offense meant, but are you sure about those code numbers? I just did some quick Googling, and found this list:

honda-tech.com/forums/tech-misc-15/full-srs-code-list-3111979/

It doesn't show codes 45 or 46, but the list could be BS. Mostly, I found it interesting that the code list shows separate codes for signal interruptions to the side impact sensors, and codes for internal failures. :huh: This would suggest to me that the module and sensors are capable of checking their own wiring. I'd have to check Mitchell to be sure.

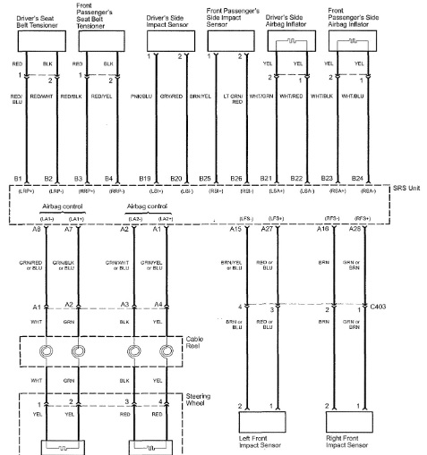
I'd suggest moving side impact sensors from one side of the vehicle to the other, but you've got codes for both sides! :lol: I had a look at the wiring diagram, too, and (supposedly) the two side impact sensors don't share any connectors:



I just have trouble understanding why BOTH sensors are coding. :blink: One or the other, I understand, but both seems suspicious.
Attachments:

Please Log in or Create an account to join the conversation.

  • Tutti57
  • Tutti57's Avatar Topic Author
  • Offline
  • Platinum Member
  • Platinum Member
More
8 years 3 months ago #13442 by Tutti57
Replied by Tutti57 on topic Re:'05 Acura TSX DTC 54-50
Yeah, I was wondering why that would be the case too. This one is my personal car. I bought it out of state and there were no warning lights on during the test drive but on my way home the srs light came on. I also noticed a couple of small pieces of glass on the passenger seat. It made me wonder if it has been crashed or just a broken window. I was trying to figure out if these were the front sensors or side, thinking that it just meant right-side, meaning the right side of the car in the front. The parts diagrams seem to call them front and rear. If both fronts deployed that would make more sense than both sides.

Sent from my Moto G Play using Tapatalk

Please Log in or Create an account to join the conversation.

  • Tyler
  • Tyler's Avatar
  • Offline
  • Moderator
  • Moderator
  • Full time HACK since 2012
More
8 years 3 months ago #13466 by Tyler
Replied by Tyler on topic Re:'05 Acura TSX DTC 54-50

Tutti57 wrote: I bought it out of state and there were no warning lights on during the test drive but on my way home the srs light came on. I also noticed a couple of small pieces of glass on the passenger seat. It made me wonder if it has been crashed or just a broken window.


I've been wondering about this, too. :lol: I couldn't figure why all the components would suddenly decide to fail while driving down the road. If they were damaged in an accident, then the SRS module should figure it out within seconds of turning the key on. :blink:

That really sucks this happened to your new (to you) car. :-( Private seller?

I was trying to figure out if these were the front sensors or side, thinking that it just meant right-side, meaning the right side of the car in the front. The parts diagrams seem to call them front and rear. If both fronts deployed that would make more sense than both sides.


I had the same thoughts while looking at the diagram. Both side impact sensors going bad makes almost no sense to me. :unsure:

Just thinking out loud here, but are you confident in the people that fixed the airbag module? I'm mostly wondering if that same module is used in multiple vehicles, and there's some kind of programmed configuration inside that determines what sensor signals it looks for on which pins. i.e. the impact sensors may be working on your '05, but the module is setup as an '07, which used different sensors.

That's just an example, and I may be way off. :silly:

Please Log in or Create an account to join the conversation.

  • Tutti57
  • Tutti57's Avatar Topic Author
  • Offline
  • Platinum Member
  • Platinum Member
More
8 years 3 months ago #13468 by Tutti57
Replied by Tutti57 on topic Re:RE: Re:'05 Acura TSX DTC 54-50

Tyler wrote:

Tutti57 wrote: I bought it out of state and there were no warning lights on during the test drive but on my way home the srs light came on. I also noticed a couple of small pieces of glass on the passenger seat. It made me wonder if it has been crashed or just a broken window.


I've been wondering about this, too. :lol: I couldn't figure why all the components would suddenly decide to fail while driving down the road. If they were damaged in an accident, then the SRS module should figure it out within seconds of turning the key on. :blink:

That really sucks this happened to your new (to you) car. :-( Private seller?

I was trying to figure out if these were the front sensors or side, thinking that it just meant right-side, meaning the right side of the car in the front. The parts diagrams seem to call them front and rear. If both fronts deployed that would make more sense than both sides.


I had the same thoughts while looking at the diagram. Both side impact sensors going bad makes almost no sense to me. :unsure:

Just thinking out loud here, but are you confident in the people that fixed the airbag module? I'm mostly wondering if that same module is used in multiple vehicles, and there's some kind of programmed configuration inside that determines what sensor signals it looks for on which pins. i.e. the impact sensors may be working on your '05, but the module is setup as an '07, which used different sensors.

That's just an example, and I may be way off. :silly:

I've never used the place before but they seem to be a popular source for the repair. Supposedly it's the same module I sent them.

I saw that there was a opds initialization option in my scan tool but it looks like that's for an occupancy sensor or something. I couldn't find anywhere that the module had to be programmed and didn't see an option in my tool like I usually do.

I'm not sure if measuring the resistance of the sensors would help in this case? I found some specs but don't know if that is a valid test for these "internal" faults.

I'm tempted to replace one sensor and see if one of the codes drops off.


Sent from my Moto G Play using Tapatalk

Please Log in or Create an account to join the conversation.

  • Tyler
  • Tyler's Avatar
  • Offline
  • Moderator
  • Moderator
  • Full time HACK since 2012
More
8 years 3 months ago #13470 by Tyler
Replied by Tyler on topic Re:RE: Re:'05 Acura TSX DTC 54-50

Tutti57 wrote: I'm tempted to replace one sensor and see if one of the codes drops off.


Honestly, this is probably what I would do if it were my vehicle. :lol: With some scope capture before and after, for any learning opportunities. I REALLY wanted to suggest this, but didn't want to endorse parts changing. :blush:

Please Log in or Create an account to join the conversation.

  • Tutti57
  • Tutti57's Avatar Topic Author
  • Offline
  • Platinum Member
  • Platinum Member
More
8 years 3 months ago #13471 by Tutti57
Replied by Tutti57 on topic Re:RE: Re:RE: Re:'05 Acura TSX DTC 54-50

Tyler wrote:

Tutti57 wrote: I'm tempted to replace one sensor and see if one of the codes drops off.


Honestly, this is probably what I would do if it were my vehicle. :lol: With some scope capture before and after, for any learning opportunities. I REALLY wanted to suggest this, but didn't want to endorse parts changing. :blush:

Ha, it's ok. I'll try to get some captures.

Sent from my Moto G Play using Tapatalk

Please Log in or Create an account to join the conversation.

  • Tutti57
  • Tutti57's Avatar Topic Author
  • Offline
  • Platinum Member
  • Platinum Member
More
8 years 3 months ago #13767 by Tutti57
Replied by Tutti57 on topic Re:'05 Acura TSX DTC 54-50
Parts are in. I'm going to try to get to it this week. Does anyone know where the side impact sensors are on this thing? 2005 Acura tsx. Thanks!

Sent from my Moto G Play using Tapatalk

Please Log in or Create an account to join the conversation.

  • Tyler
  • Tyler's Avatar
  • Offline
  • Moderator
  • Moderator
  • Full time HACK since 2012
More
8 years 3 months ago #13771 by Tyler
Replied by Tyler on topic Re:'05 Acura TSX DTC 54-50
Mitchell indicated that they're under the door sills on both sides. But, it also talked about first and secondary side impact sensors. :unsure: That might be BS.

Please Log in or Create an account to join the conversation.

  • Tutti57
  • Tutti57's Avatar Topic Author
  • Offline
  • Platinum Member
  • Platinum Member
More
8 years 3 months ago #13774 by Tutti57
Replied by Tutti57 on topic Re:RE: Re:'05 Acura TSX DTC 54-50

Tyler wrote: Mitchell indicated that they're under the door sills on both sides. But, it also talked about first and secondary side impact sensors. :unsure: That might be BS.

Thanks for looking into that. The front or rear door sills? My codes did indicate 1st and 2nd, so we will have to see what that means.

Sent from my Moto G Play using Tapatalk

Please Log in or Create an account to join the conversation.

Time to create page: 0.406 seconds